Se vende amplia vivienda de dos plantas situada en la zona del Havana-Centro de Mataró, muy próxima al centro y a todos los servicios. Una propiedad ideal tanto para familias grandes como para quienes buscan espacio, independencia y posibilidades de ampliación futura.
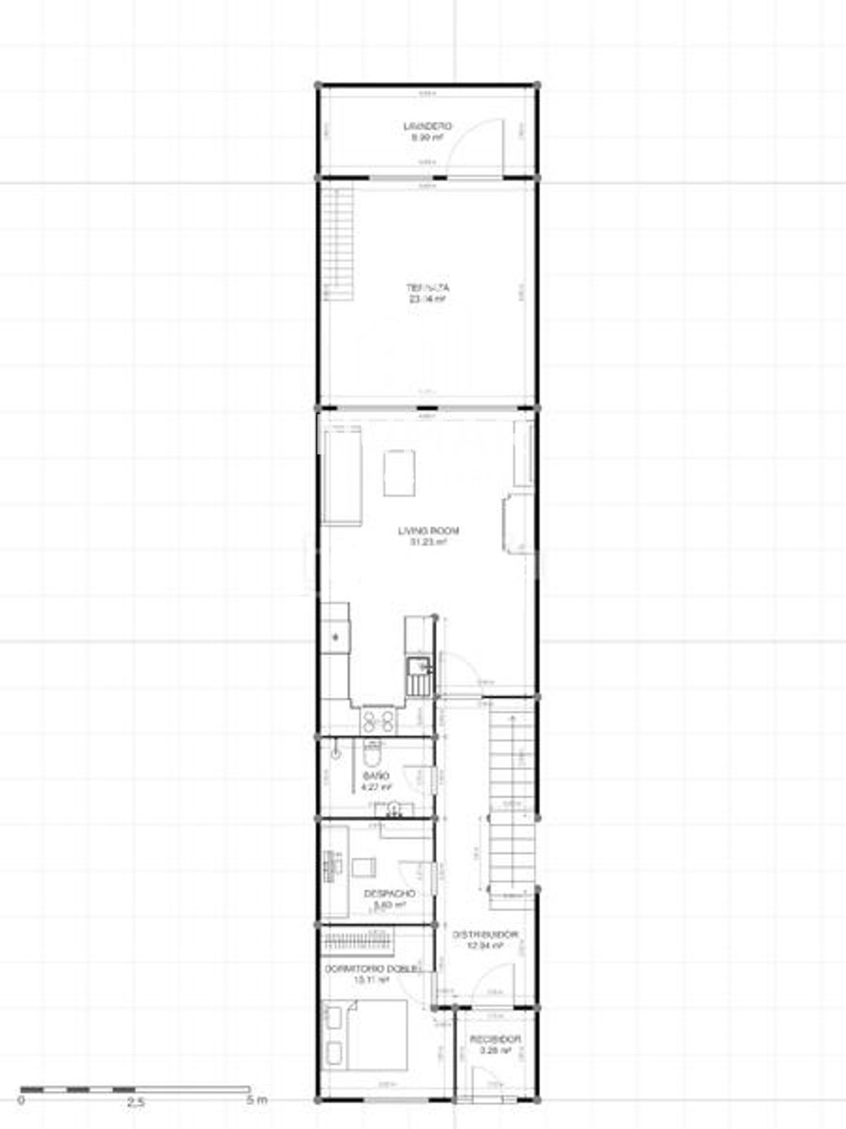
Planta baja
En la planta principal encontramos:
• 1 habitación con ventana a la calle (ideal como dormitorio, despacho o consulta profesional).
• Baño completo con plato de ducha.
• Práctico trastero.
• Cocina eléctrica abierta al salón, creando un espacio funcional y cómodo para el día a día.
• Salida directa a patio privado, perfecto para disfrutar al aire libre.
Desde el patio se accede a:
• Zona de lavadero independiente.
• Escalera exterior que conduce a una terraza superior, ideal como zona chill out o solárium.
Primera planta
En la planta superior se distribuyen:
• 4 habitaciones.
• Dormitorio principal tipo suite, con baño completo y plato de ducha.
• Segundo baño completo de 4 piezas con bañera.
En total, la vivienda dispone de 5 habitaciones y 3 baños, lo que la convierte en una opción perfecta para familias numerosas o para combinar vivienda y teletrabajo.
Extras que marcan la diferencia
• Plaza de parking opcional a tan solo 30 metros de la vivienda.
• Derecho a vuelo, con posibilidad de construir una planta adicional (gran valor de futuro e inversión).
• Ubicación en una de las zonas más demandadas de Mataró.
Una casa con metros, exterior, múltiples espacios y proyección de crecimiento.
Si buscas amplitud en zona céntrica sin renunciar a patio y terraza, esta puede ser tu oportunidad.
Contáctanos para más información o para concertar visita.
El precio no incluye los gastos de compraventa (notaría, registro, impuestos, etc.).